Zum Garagen-Sectionaltor RenoMatic erhalten Sie auch passende Nebentüren mit schmalen Aluminium-Profilen. Die Füllungen der Türen sind auf das Tormotiv sowie auf die Oberfläche und Farbe abgestimmt. So ergibt sich ein harmonischer Gesamteindruck von Tor und Nebentür.
Die Nebentür gibt es mit L-Sicke und der glatten Planar Oberfläche oder in der Variante Woodgrain mit der M-Sicke. Das Türelement wird mit einer Blockzarge ausgeliefert, die hinter der Öffnung verbaut wird und das Türblatt wird nach innen geöffnet.
Bei den Garagennebentüren können Sie zwischen einem schmalen und einen breiten Rahmen wählen. Dabei geht es nicht um den Tührrahmen (die Zarge), sondern der Rahmen, der um die Lamellen verschraubt wird. Dieser Rahmen liegt zwischen der Zarge und den Lamellen. Auf den Fotos sehen Sie den Unterschied.
Beim schmalen Rahmen (Profiltyp 1) sitzt der Türdrücker auf der Lamelle. Hier kann es aufgrund der Türhöhe und der Lamellenverteilung dazu kommen, dass der Türdrücker nicht auf die Standardhöhe 1050 mm gesetzt werden kann.

Beim breiten Rahmen (Profiltyp 2) sitzt der Drücker immer auf dem Rahmen, sodass der Drücker immer auf der Standardhöhe 1050mm gesetzt wird.

Ansichtsgleich und WunschgrößenDas Element gibt es in einem Rahmenaußenmaß in der Breite zwischen 855 bis 1330 mm. Das Rahmenaußenmaß in der Höhe beträgt 1800 bis 2558 mm. Damit können Sie die Garagennebentür optimal an das Renomatic Garagentor von Hörmann anpassen, denn auch eine Ansichtsgleichheit ist möglich. Das ist dan interessant wenn Ihr Renomatic 2019er Garagentor direkt neben der Tür verbaut ist. So ist gewährleistet, dass die Sicken in der selben Höhe sind.
Das passende Garagentor für diese Nebentür finden Sie auch in unserem Shop.
Das aus schmalen Aluminiumprofilien gefertigte Türelement ist hochwertig verarbeitet und passt im Detail und Design optimal zu den aktuellen Hörmann Aktionstoren. Auch das Detail wie die Oval-Rosette und die pflegeleichte schwarze Drückergarnitur passen ins Bild dieser Garagennebentür.
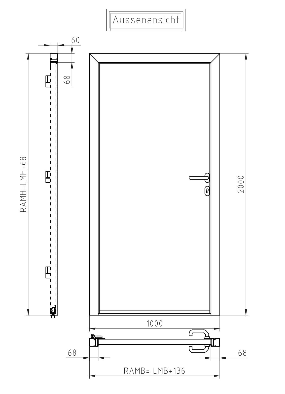
In der nachfolgenden Zeichnung sehen Sie die Bemaßungen der Tür für Ihre Planung. Bitte beachten Sie bei der Bestellung, dass dieses Element auf der Innenseite der Garage hinter der Öffnung verbaut wird.
Beispiel:
Das heißt, wenn Sie eine lichte Wandöffnung von 1000 mm Breite haben, dann beträgt das Rahmenaußenmaß 1000 + 68 mm + 68 mm = 1136 mm Rahmenaußenmaß. Und bei einer lichten Wandöffnung in der Höhe von 2000mm müssen Sie 68 mm hinzurechnen und kommen dann auf ein Rahmenaußenmaß von 2068 mm. 